Artist’s Cabin
Truckee, CA
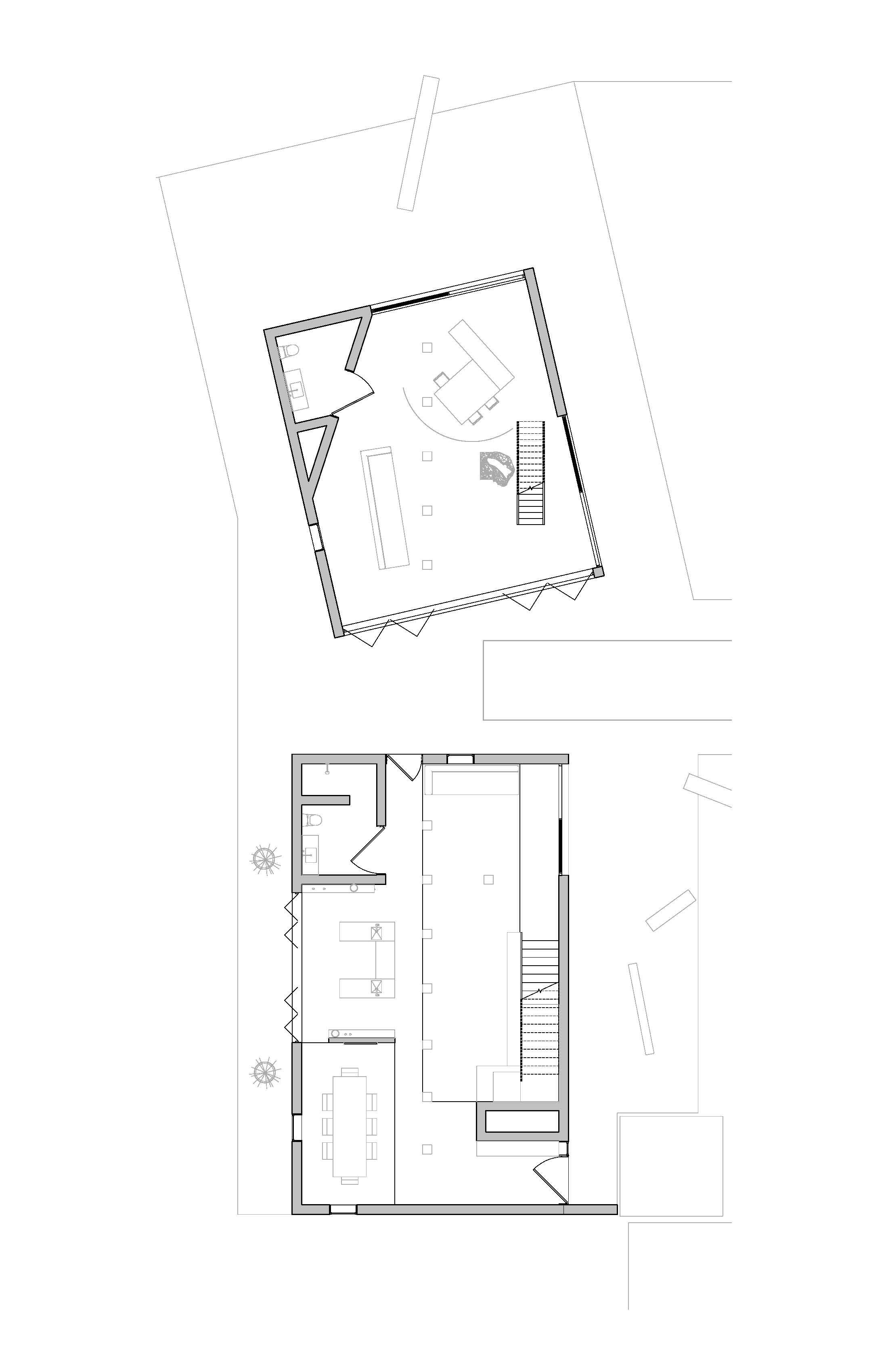
The Artists’ Cabin is a single family residence and art studio.
Truckee, CA
The Artists’ Cabin is a single family residence and art studio.
A lap pool bisects the main living area and art studio, creating a separation between public and private functions.

Entry

A zinc metal roof and zinc exterior overhang reflects the sky and surrounding environment.




Upper Level Catwalk

Master Bedroom




Dining






